• 葫芦娃污视频,葫芦娃视频下载,葫芦娃污版下载,葫芦娃成人短视频APP

    咨询热线

    0373-2682 333

    厂家微信
    当前位置:首页 > 公司产品 > TD/D型斗式提升机

    TD/D型斗式提升机

    TD/D型斗式提升机

    产品型号:TD/D

    产品简介:TD/D型斗式提升机适用于垂直输送粉状、粒状、及小块状的磨吸性较小的散状物料,如粮食、煤、水泥、碎矿石等,提升高度高40m。斗式提升机由运行部分,带有传动滚筒的上部区段,带有拉紧滚筒的下部区段,中间机壳,驱动装置,逆止制动装置等组成。

    咨询报价销售热线:0373-268 2333

    TD/D型斗式提升机产品概述:

    TD系列斗式提升机适用于垂直输送粉状、粒状、及小块状的磨吸性较小的散状物料,如粮食、煤、水泥、碎矿石等,提升高度高40m。TD型按JB3926-85《垂直斗式提升机》标准设计制造,目前国内常用的斗式提升机均为垂直式,较新型。TD型斗式提升机备有四种料斗Q型(浅斗)、H型(弧底斗)、ZD型(中深斗)SD型(深斗)。

    斗式提升机

    TD/D型斗式提升机基本结构:

    TD型斗式提升机由运行部分(料斗与牵引胶带),带有传动滚筒的上部区段,带有拉紧滚筒的下部区段,中间机壳,驱动装置,逆止制动装置等组成,适用于向上输送松散密度ρ<1.5t/m3粉状、粒状和小块状的无磨琢性和半磨琢性散状物料,如煤、砂、焦末、水泥、碎矿石等。

    TD型斗式提升机结构形式:传动装置TD型斗提升机的传动装置有两种形式分别配有YZ型减速器ZQ(或YY)型减速器。YZ型轴减速器直接装在主轴轴头上,省去了传动平台、联轴器等,使结构紧凑、重量轻,而且其内部带有异型辊逆止器,逆止可靠。该减速器噪音低,运转平稳,并随主轴浮动,可消除安装应力。

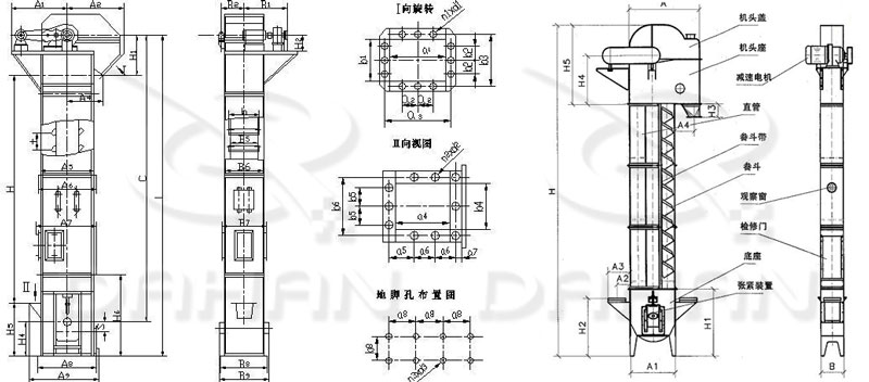
    TD/D型斗式提升机基本结构:机头盖,机头座,减速电机,直管,底座,紧张装置等。

    TD、D型斗式提升机技术参数:

    Q h zD Sd Q Q h zD Sd Q h zD Sd 5.4 9.6 9.6 16 12 17 30 25 40 24 46 41 66 0.5 0.9 4.2 1.9 1.3 2 3.6 3.8 5.8 3.1 5.6 5.9 9.4 Q h zD Sd h S Q S Q S S 38 70 58 92 85 8 18 22 25 42 72 4.8 9 9.3 15 14 1.1 2.6 3.2 7 7.8 15
    型号 TD160 TD250 TD315 TD400
    料斗形式 h zD Sd
    输送量(m3/h) 22 23 35
    斗宽(mm) 160 250 315 400
    斗容(L) 2.2 3.0 4.6
    斗距(mm) 280 350 360 450 400 500 480 560
    带宽(mm) 200 300 400 500
    斗速(m/s) 1.4 1.6 1.6 1.8
    物料量大块(mm) 25 35 45 55
    型号 TD500 TD630 TD160 TD250 TD350 TD450
    料斗形式 zD Sd Q Q
    输送量(m3/h) 89 142 4.7 50
    斗宽(mm) 500 630 160 250 350 450
    斗容(L) 14.6 23.5 0.65 14.5
    斗距(mm) 500 625 710 300 400 500 640
    带宽(mm) 600 700 200 300 400 500
    斗速(m/s) 1.8 2 1 1.25 1.25 1.25
    物料量大块(mm) 60 70 25 35 45 55

    TD、D型斗式提升机细节展示:

    TD型斗式提升机细节展示

    TD、D型斗式提升机主要特点:

    td斗式提升机特点

    1.驱动功率小,采用流入式喂料、诱导式卸料、大容量的料斗密集型布置.在物料提升时几乎无回料和挖料现象,因此无效功率少。

    2.提升范围广,这类提升机对物料的种类、特性要求少,不但能提升一般粉状、小颗粒状物料,而且可提升磨琢性较大的物料.密封性好,环境污染少。

    3.运行可靠性好,合理的设计原理和加工方法,保证了整机运行的可靠性,无故障时间超过2万小时。提升高度高.提升机运行平稳,因此可达到较高的提升高度。

    4.使用寿命长,提升机的喂料采取流入式,无需用斗挖料,材料之间很少发生挤压和碰撞现象。本机在设计时保证物料在喂料、卸料时少有撒落,减少了机械磨损。

    旋振筛,直线葫芦娃视频下载,摇摆筛,超声波葫芦娃视频下载,试验筛

    Copyright © 2008-2022 葫芦娃视频下载厂家 - 新乡市葫芦娃污视频振动机械有限公司 版权所有 免责声明

    地址:延津县森林公园大门西1000米路北 备案号:豫ICP备10432561号-20

    网站地图